Phân khu D Vinhomes Olympic tỉ lệ 1/500 là bản quy hoạch chi tiết được phê duyệt để thực hiện dự án. Phân khu D khu đô thị thể thao Olympic là dự án thành phần trong tổng thể gồm 4 phân khu định hình nên chùm đô thị phía Nam thủ đô Hà Nội được thành phố phê duyệt.
Sơ bộ phân khu D Vinhomes Olympic Hà Nội.
Phân khu D Vinhomes Olympic có vị trí nằm phía Tây của đô thị thể thao. Là phân khu cuối theo bảng chữ cái thuộc khu đô thị thể thao phía Nam thủ đô.
Khu D được quy hoạch các công trình trọng điểm, ngoài ra vị trí khu B nằm trên địa phận xã Thường Tín – đây cũng là địa phận trung tâm trấn Thường Tín lâu nay ở xã Thường Tín, khu B được thừa hưởng đầy đủ quy hoạch trung tâm hành chính của thị trấn Thường Tín như hệ thống bệnh viện công, các cơ sở hành chính, uỷ ban xã .. đều đặt ở đây.
Khu D có vị trí giao thông hướng tuyến kết nối trực tiếp vành đai 4 và tuyến đường 3.5 thông qua tuyến đường trục phía Nam [QL 21C], ngoài ra tuyến quốc lộ 21B mở rộng mới (khởi công tháng 3.2025) kết nối thuận lợi khu D Vinhomes Olympic khu vực Hà Đông và các khu vực phát triển ở phía Tây của thủ đô.
(Ảnh: Tuyến đường trục phía Nam)
Diện tích đất nghiên cứu lập quy hoạch của Khu D Vinhomes Olympic là 3.742 hecta với quy mô dân số ước lượng khoảng 275.000 người.
Quy hoạch không gian đô thị khu D Vinhomes Olympic Hà Nội.
Add Your Tooltip Text Here
Add Your Tooltip Text Here
Add Your Tooltip Text Here
Add Your Tooltip Text Here
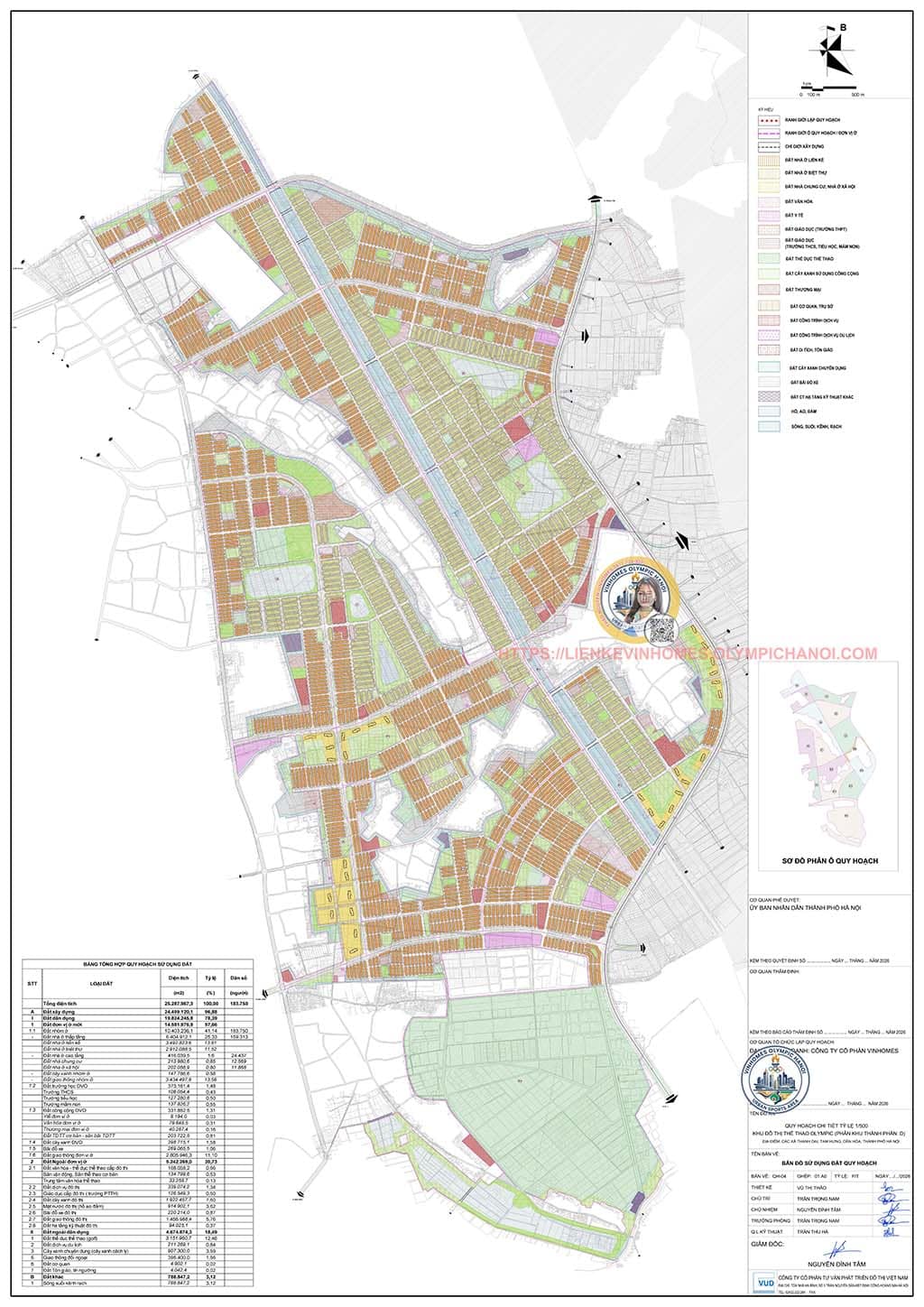
BẢN ĐỒ QUY HOẠCH SỬ DỤNG ĐẤT KHU D VINHOMES OLYMPIC.
Bạn muốn xem rõ nét?
Bản đồ sử dụng đất chi tiết khu B Vinhomes Olympic dung lượng lớn, nhằm tiết kiệm tài nguyên cũng như gia tăng trải nghiệm của khách hàng, website lienkevinhomes.olympichanoi.com tổng hợp các bản vẽ chi tiết & rõ nét tại link:
➡️ https://lienkevinhomes.olympichanoi.com/mat-bang-vinhomes-olympic-ha-noi/
Các quy hoạch tỉ lệ 1/500 khu A, C, D xem tại:
➡️ Quy hoạch khu A Vinhomes Olympic Hà Nội.
















